软帘防撞冷库门代表着世界工业门的专业水平,拥有很高的可靠性、实用性,其快速运行可以节省制冷耗电量,每年为用户节约近10万元电费,在当今冷链行业领域中拥有独特地位,合理的机构设计使得故障率降低99.99%。
2023年国家高新科技制定产品。
软帘防撞冷库门代表着世界工业门的专业水平,拥有很高的可靠性、实用性,其 快速运行可以节省制冷耗电量,每年为用户节约近10万元电费,在当今冷链行 业领域中拥有独特地位,合理的机构设计使得故障率降低99.99%。
光电传感控制门体运行,实现安全?;?/p>
门体两侧装有LED倒车感应示宽灯
. 门体受撞击自动脱轨,在上开过程中自动复位,无需人工修复
可配雷达装置,有效保护物体或行人
颜色定制
产品参数
蓝色
黄色
| 适用温度 | ||
|---|---|---|
| 尺寸 | 宽度范围 | 1200mm~4000mm |
| 高度范围 | 1500mm~5000mm | |
| 性能 | 保温性 | ≤3.0W/(㎡?K),达国标4级 |
| 速度 | 开启 | 0.8m/s~1.6m/s;可调 |
| 关闭 | 0.8m/s~1.6m/s;可调 | |
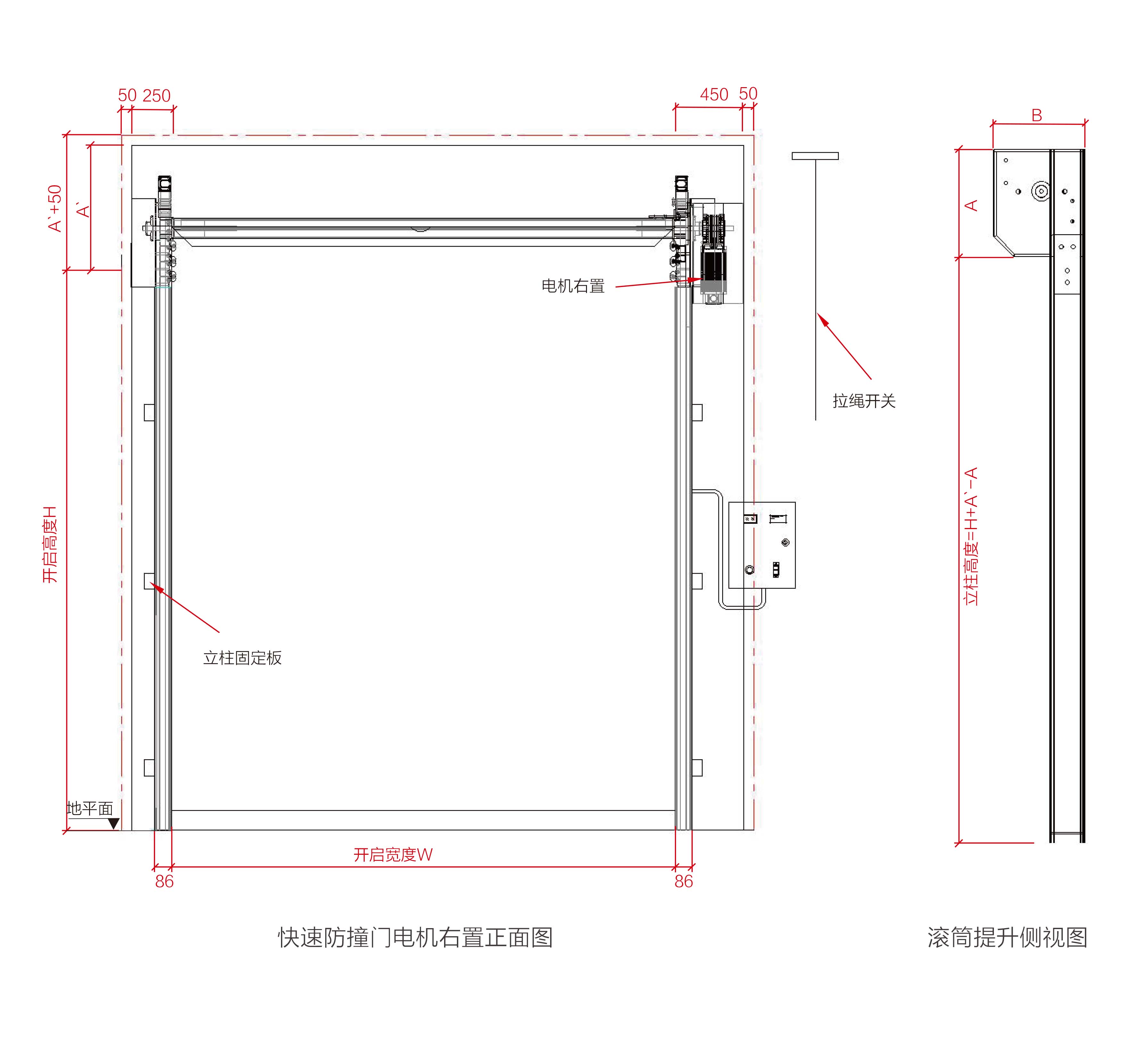
机械结构
| 提升方式 | 卷轴式提升 | |||
|---|---|---|---|---|
| 防冻加热装置 | 门周围加热线 | |||
| 门帘 | 门帘材质 | 采用双层耐低温专用环保门帘,中间填充环保高分子保温材料 | ||
| 门帘规格 | 门帘总厚度 30mm | |||
| 门帘颜色 | 蓝色 | |||
| 视窗 | 材质 | - | ||
| 通排 | - | |||
| 轨道 | 材质 | 铝合金 | ||
| 尺寸 | 电机侧: 86.1*120*3 | 非电机侧:86.1*120*3 | ||
| 传动轴 | 传动轴采用可伸缩式花键传动轴,此方案多应用于汽车传动动力,终身免维护,可有效的降低噪音并适用于因温度变化造成的金属分子变化而产生尺寸偏差。 | |||
控制系统
| 电源要求 | ||
|---|---|---|
| 电机 | 品牌型号 | 拉斐特定制电机 |
| 参数 | 1.5kW,220V,50/60HZ | |
| 性能 | 耐低温 | |
| 电控箱 | 品牌型号 | 拉斐特定制总控制箱 |
| 参数 | - | |
| 紧急开启 | - | |
安全防护
| 红外对射 | 门框两侧设有对射电眼,快速门下方有障碍物时,门体保持开启状态当门体下降时有物体通过,门体会自动反弹到开启位置,待下方无障碍物时再延时下降 |
|---|---|
| 安全底边 | - |
| 进口光幕(选装) | - |
开启方式(选装)
雷达感应、地磁感应、??馗杏?、蓝牙射频、拉绳开关、互锁
安装条件
产品细节




保温门板,立柱
电机电控
电机电空,机头封板
防撞防霜装置
地磁感应开启
互锁联动
拉绳开关
雷达
在操作过程中,人和物体不得在门体下降范围内。
严禁在门体关闭时,在门下方活动。
在快速门启闭时,请勿撞击门体影响门体正常运转。
请勿污染轨道以及滑轮,因为可能会影响运行稳定性。
请确保运行时轨道内没有异物和碎屑,以免卡住门体。
在竞争日益激烈的工业自动化领域,每一次的展会不仅是企业展示最新技术成果与产品创新的舞台,更是行业内外交流思想、探讨趋势、拓展市场的重要平台。"
涡轮快速卷帘门很适合用做厂房车间外门、也可以做对密封性要求较严的室内隔断门、快速物流通道门、公共停车库门、立体车库门、消防车库门"
涡轮硬质快速门?在市场上价格差距悬殊,以9平方米为例,有的品牌报价高达十万八万,而有的则只需三万五万。当然,还有更低的价格,甚至一两万或几千元也可以做。那么,为什么价格会有如此大的差异呢?今天我们就来深入探讨一下。"
硬质快速门产品,始终以品质为首要。每一樘门都经过严格筛选,确保出厂销售的每一件产品都近乎完美。我们深知,客户是明智的,他们信任品牌与品质,才会选择我们。因此,我们始终以200%的努力,追求产品的极致,以回馈客户的这份信赖。"
快速门国内领导者品牌 ·中国涡轮硬质快速门制造厂家,专注于快速门生产研发二十年"
2009年,中国涡轮硬质快速门在拉斐特生产,如同破晓时的曙光,宣告了中国涡轮硬质快速门市场的崭新篇章。这款产品打破了国际品牌快速门产品在国内中高端市场的垄断,填补了国内工业快速门市场的空白。同年,拉斐特涡轮硬质快速门入驻人民大会堂,这标志着中国硬质快速门技术的崛起和在国内市场的影响力不断提升。"